松阪市飯高町粟野
周辺の地図
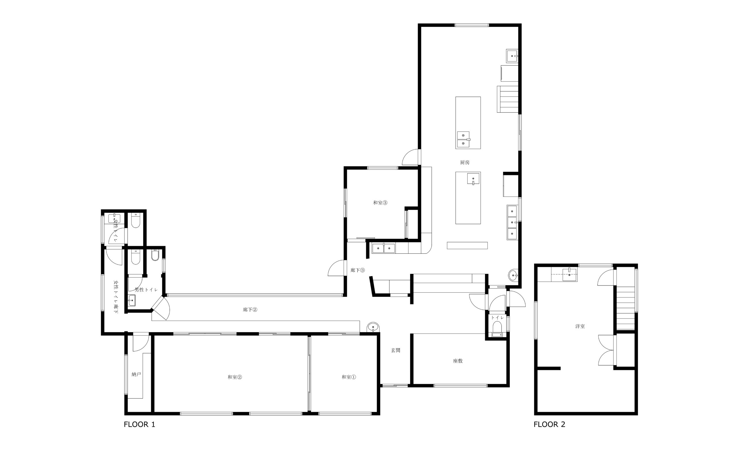
設備について
電気
引き込み済み
ガス
プロパンガス
水道
上水道
下水
単独浄化槽
風呂
トイレ
水洗(洋式), 水洗 (小便器)
駐車場
青空
庭
有
その他
駐車場(青空13台)
建物の状態
利用状況
放置
4ヶ月
補修
多少の補修必要
補修費用負担
入居者負担
シロアリ被害
有
雨漏り
無
臭い
無
騒音
無
その他
周辺の環境
バス停までの距離
0.5 km
松阪駅までの距離
39.2 km
地域振興局までの距離
9.8 km
総合病院までの距離
40.1 km
診療所までの距離
7.2 km
歯科診療所までの距離
9.5 km
スーパー・食品店までの距離
3.5 km
金融機関までの距離
16.1 km
保育園・幼稚園までの距離
9.3 km
小学校までの距離
7.7 km
中学校までの距離
11.4 km
ホームセンターまでの距離
16.1 km




























